Blinq
- Public space design
- Urban design plan
- Post-war garden city
A large vacant site in a fairly complex and contrasting environment offers space for a new residential landscape with 180 homes. The design must take various factors into account. On one side of the area, there is a strong urban backdrop with large mid-20th-century housing blocks, while on the other side a more suburban atmosphere prevails. In addition, the site is bordered by a busy road and adjoins a somewhat secluded park. The field itself is home to a members-only sports club. The clubhouse forms a kind of island within the otherwise empty field and is oriented with its back turned toward it.


Aerial view situation 2019
Photo outdoor swimming pool De Blinkert 1970
Design and elaboration
De Blinkert will become a connecting link within its surroundings on multiple levels: urban, landscape, and ecological. The urban connection is achieved by placing buildings with the right proportions and massing in the appropriate locations. In doing so, attention has not only been paid to creating a connection between De Blinkert and the surrounding neighborhoods, but also to how this plan can form a link between those neighborhoods themselves: from the gallery flats along the Rondelen to the detached bungalows around Van Maerlant Park. This is accomplished by creating a layered area, where building heights step down from 17 to 7 to 6. This dynamic, layered ensemble is therefore diverse, yet demonstrates strong architectural coherence.
The buildings are positioned in such a way that generous (green) intermediate spaces are created, where a sense of collectivity is experienced and where the entrances are located. These in-between spaces ensure smooth connections throughout the area and are equipped with paths and routes offering interesting sightlines. The entire area will be publicly accessible.
By introducing two pedestrian bridges, the existing green zone on the western side of the project area becomes an integral part of the whole in landscape, ecological, and recreational terms. This green zone is drawn into the project area by introducing natural banks and an ecological continuation through the (partly elevated) site. The landscape offers a carefully considered alternation of ‘open’ and ‘dense’, with both solitary and clustered trees, as well as continuous shrubbery. In this way, De Blinkert not only ensures visually appealing, seamless transitions between the project area and its surroundings, but also creates an ecological corridor that improves accessibility of green avenues, waterways, and green structures in the neighborhood for birds, small mammals, and amphibians. De Blinkert will become a fully integrated residential landscape for people, flora, and fauna, of high landscape quality.

A green parking deck
A crucial step is to place parking facilities not only out of sight but underground. On top of the deck, we add a green living environment with shrubs and small trees that can thrive on a thick layer of 80 centimeters of soil. With this green deck, we create a nature-inclusive space and natural water storage on the one hand, while significantly enhancing the livability and attractiveness of the area on the other.


Smart configuration of buildings
The various buildings are positioned within the landscape in such a way that a smooth transition is created from the existing high-density urban area on one side to the low-rise residential area on the other. This transition is also reflected in the architecture: a layered design—with a clear contrast between the upper and lower levels—creates a more welcoming appearance at ground level. This is further emphasized by the thoughtfully designed functions and the connections between the buildings and the public space.
The green parking deck features gently sloping embankments and is easily accessible. It clearly acts as an extension of the existing park, thereby mitigating its somewhat isolated setting and creating an organic unity. This improved park is not only an asset for the new residents, but also provides that much-needed connection with the surrounding neighborhood. In this way, even more residents can enjoy this new, inclusive landscape.

Embedding sport and wellbeing
Physical activity is deeply embedded in the DNA of this place and its surroundings. The area around the site hosts many sports clubs, as well as informal play and sports facilities such as a panna cage. And of course, David Lloyd attracts athletes from the neighborhood and beyond. De Blinkert seizes the opportunity to connect all of this and approach it in a more integrated way.
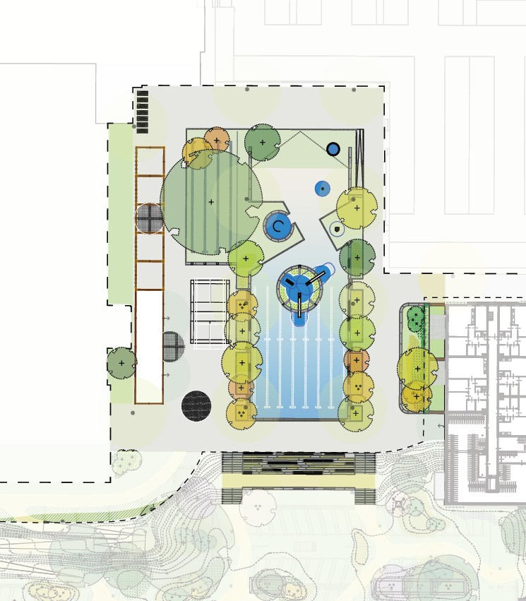
We introduce The Bath, a sunken square that refers to the former swimming pool, complete with a grandstand. In the adjacent Pavilion, you’ll find goals, hoops, balls, sticks, and other equipment, while the lines and surfaces in The Bath encourage different types of play and sport. Around The Bath are several smaller play areas, ranging from marbles to pétanque. In addition to this multifunctional open space, the area in and around the plan—together with the adjacent ecological zone—links various sports and recreational routes.
These routes also connect to a 5 km running loop through the green spaces around the neighborhood and to a 50 km road cycling route through the Groene Hart. New and existing residents thus gain access to movement, sports, and play close to home, within the neighborhood, and in the surrounding landscape. The plan area also incorporates more informal opportunities for sport. For example, the wide steps of the grandstand can be used for exercise, and the open frame next to the Pavilion can be equipped with sports features and/or outdoor fitness. De Blinkert encourages people to get moving in an accessible way.

BuitenThuis de Blinkert: a recognizable place where everything comes together
Bringing together—and creating connections between—all the different elements forms the core from which the area’s new and distinctive identity unfolds: a place for movement, sports, and well-being for the conscious urban resident of today and tomorrow.
We draw inspiration from the former basins, grandstands, changing cabins, and diving boards to shape the area. Various landscape details will revive the cultural heritage connected to this location. A good example is the arena-like character of De Blinkert, created for instance through grandstands that lead into the park. These grandstands not only serve as a physical connection to the park, but also have a social function: an explicit reference to the area’s past as a communal outdoor swimming facility.


Want to know more about this project?
Menno will be happy to tell you about it!